top of page

Mimari Yaklaşım
Mevcut durumda otopark olarak kullanılan proje alanında,erken osmanlı dönemine ait duvar kalıntıları bulunmaktadır. Bazı noktalarında bu duvar kalıntılarına müdahalelerde bulunulmuş ve özgünlüğü bozulmuştur.
Tasarım, bu tarihi duvarların son durumdaki halini niteliksiz müdahaleleri yapıdan sökerek korur ve yeni göçmen merkezinin günlük yaşamının bir parçası haline getirir. Hadım Odaları Sokak üzerindeki girişinde ve yapının batısında yarattığı avlularda bu duvarları birer obje gibi sergileyerek kullanıcıların duvarla etkileşimini arttırır. Yapı, parçalı kütle kurgusuyla farklı dil, din ve ırktan insanların biraradalığını simgeler. Parçalı kütlelerde, farklı ritimlerde seyreden cepheler ; bir yandan farklılıkların biraradalığına atıfta bulunurken, bir yandan üzerine oturduğu tarihi duvarın iki ayrı malzemeyle kurguladığı kompozisyona ayak uydurur. Modern malzemesiyle, tarihi duvarın çizgilerine zıt bir yönelim sergileyerek kendini ayrıştırır.
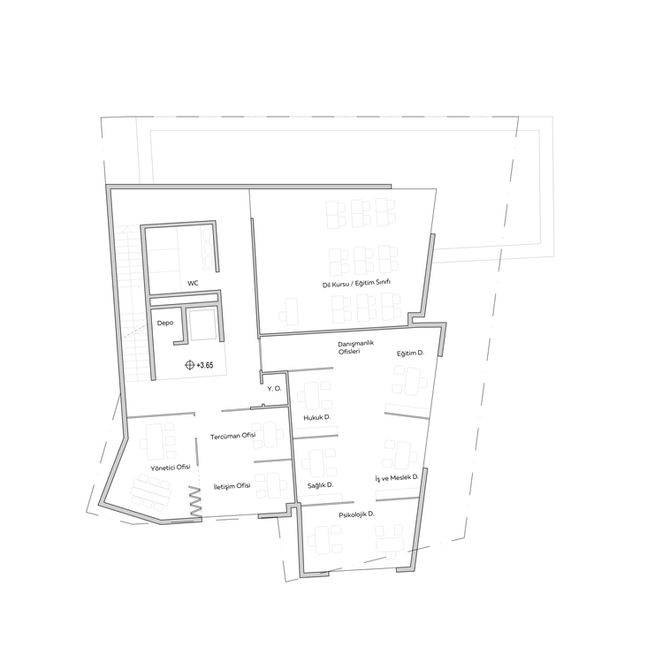
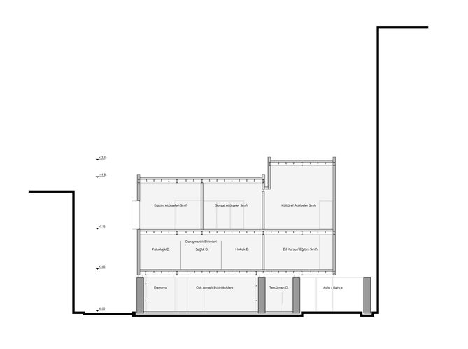
Zemin kat bir etkileşim alanı olarak kurgulanmıştır. Tarihi duvarın etkisini arttırmak için bu alanda fonksiyonlar daha serbest bırakılmıştır. Giriş avlusunun devamında danışma bankosu kullanıcıları karşılar. Sonrasında yer alan çok amaçlı fuaye, yılın farklı zamanlarında seminer alanı, atölyelerde üretilen eserlerin sergileme alanı, duyuru alanı, afiş alanı gibi fonksiyonlara bürünerek kullanıcılarına farklı şekillerde hizmet eder. Devamında da bu alana hizmet edebilecek bir kafeterya yapısı ve bahçe – avlu bulunmaktadır. Yapının birinci katında göçmenlerin en çok hizmete ihtiyaç duyduğu danışmanlık ofisleri konumlandırılmıştır. Yönetim ofisleri ve dil kursu – eğitim alanı yine bu katta bulunmaktadır. İkinci kat sirkülasyonun kalabalığından uzak, sessizliğe ihtiyaç duyan eğitim atölyeleri, sosyal atölyeler, kültürel atölyeler ve kitaplık – ortak çalışma alanı gibi fonksiyonlara ayrılmıştır.
Çelik ayaklar üzerinde yükselen yapı, tarihi duvara müdahale etmeden, bu duvarlar üzerinde yüzer konumdadır. Çelik kolonların altında yer alan tekil temeller, inşaat kazı alanını minimuma indirerek olası buluntuların zarar görmesini engeller.
Program
Danışmanlık, Atölye, Eğitim
Yıl
2021
Proje Yeri
İstanbul, Fatih, Türkiye
Alan
535 m²
İşveren
Istanbul Metropolitan Municipality
Ekip / KAAworks ile birlikte
Egemen Onur Kaya, Bahadır Kantarcı, Ece Avcı
bottom of page








































